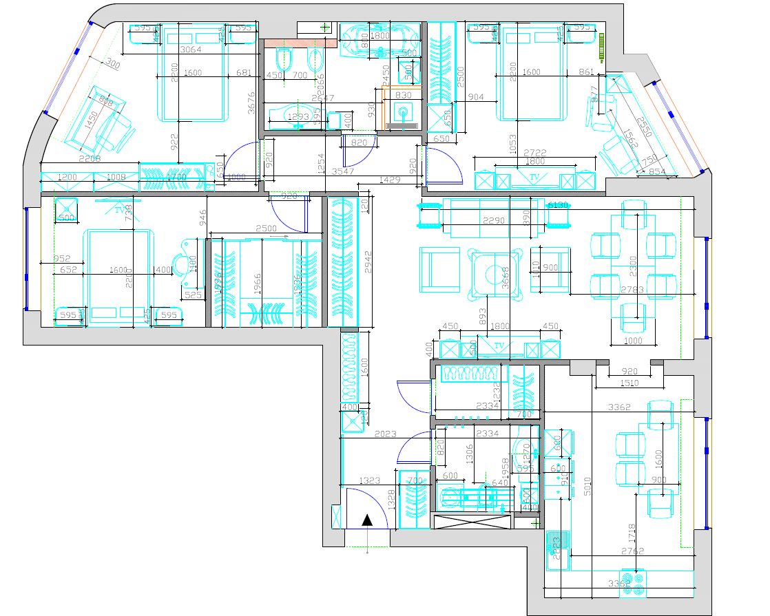
JK. Semvol Daire Fit-Out

JK. Sembol daire Fit-out -  Moskova'da bulunan 134m2 daire projesi şirketimiz tarafından anahtar teslim  inşaat, mekanik ve elektrik işleri yapılmıştır. 

İş tanımı: 

  • İnşaat işleri
  • Isıtma tesisatı
  • Havalandırma 
  • Su tesisatı
  • Elektrik işleri
Paylaş

Diğer Projelerimiz

WeCreativez WhatsApp Support
Merhaba Size Nasıl Yardımcı Olabiliriz?